Not all luxury is loud. Some of it whispers—through thoughtful design, balanced proportions, and a layout that feels more like a retreat than a residential grid. That’s what TVS Emerald Aaranya in Vengaivasal is shaping into.
Vengaivasal gives it an edge—close to Medavakkam, OMR, and Velachery, while still holding onto its green, clean, residential sheen. Schools, shops, and essentials are within minutes. But inside Aaranya? You’d hardly notice.
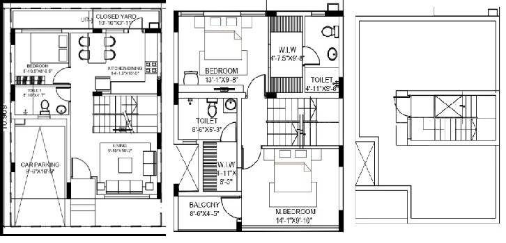
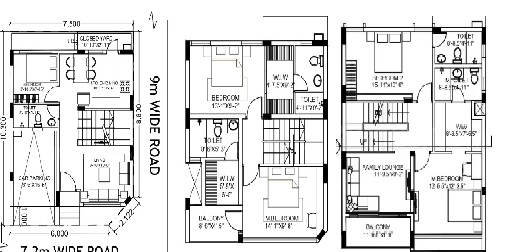
Sprawled over 15.60 acres, this under-construction community by TVS Emerald Haven Realty Limited brings together just 96 villas—each one carefully planned across G+1 levels. With 3 & 4 BHK formats ranging from 1969 to 2316 sq. ft., these homes don’t just promise comfort — they deliver quiet, cool living that still stays connected to the city’s humdrums.
Every villa here feels like it’s been considered carefully, built beautifully. Airy interiors, purposeful layout, privacy where it matters. It's a space where family routines can unfold super smoothly and weekend stillness can be savored in peace gracefully. This isn’t about status. It’s about settling into something that feels genuinely yours. Because sometimes, true luxury isn’t in the size—it’s in the silence, the softness, and the space to grow.
