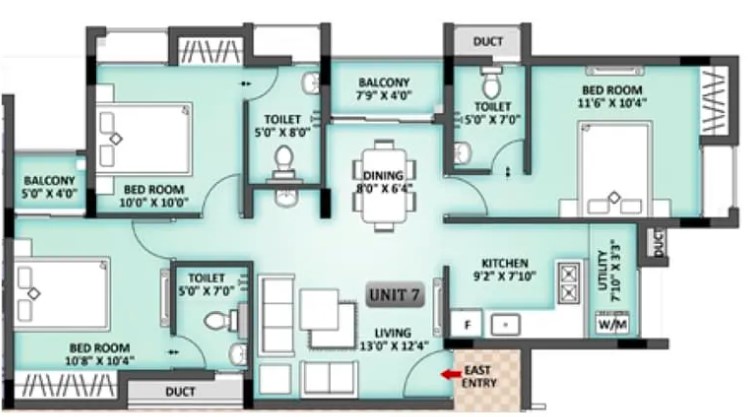
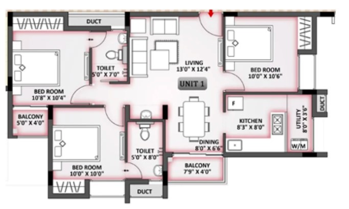
LML Arshiya in Kattupakkam by LML Homes offers a well-thought-out space for families who prefer mid-rise comfort over high-rise noise. The project spans 14.5 grounds and includes 74 thoughtfully planned units spread across 3 compact blocks, each rising to Stilt + 5 floors. It’s the kind of setup that keeps things simple—low density, easy access, and less crowding.
These are 2 and 3 BHK apartments, and the homes range from 992 sq.ft to 1411 sq.ft, giving just enough room without the extra unused corners. Since it’s already Ready to Occupy, there’s no waiting—just pick, move in, and settle. No construction delays, no endless follow-ups.
What stands out here isn’t just the building itself—it’s the way it sits in Kattupakkam. You’re within reach of major roads, schools, stores, and hospitals, yet far enough to skip the constant traffic buzz. It feels more personal, more grounded.
LML Homes isn’t trying to sell a flashy lifestyle here. They’ve gone for livable design, functional spaces, and a setup that doesn’t overpromise. For folks who want something ready, practical, and easy to blend into, LML Arshiya hits the mark.
