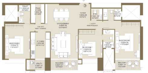
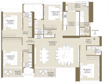
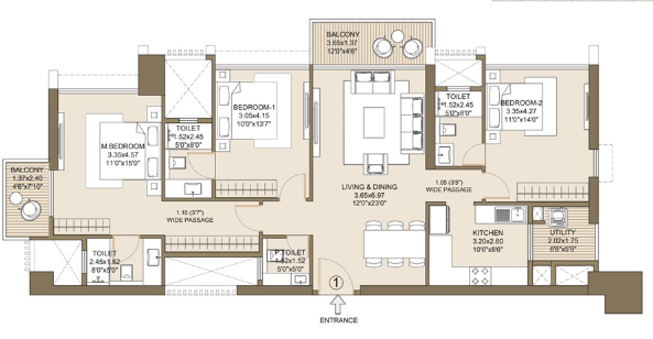
Looking for a grand entry point in the heart of the buzzing city? The Gateway, on the eastern edge of the city, draws your attention to its unparalleled beauty. It’s an iconic skyscraper taking shape in Sewri, Mumbai, by L and T Realty. It surrounds you in a natural setting, where you can wake up to a fresh breeze every morning. Living on 2.5 acres can literally feel like you’re on top of the world. The high-rise structure turns everyone’s head with its aesthetic exteriors and the vibrant life within. For anyone residing in this gated community, this feels like a king-size life. 3 and 4 BHK configurations are especially developed to offer wide-open spaces where families and friends can come together comfortably. Its floor plans start from 1258 sq. ft. and go up to 2252 sq. ft. This level of freedom to choose your living space guarantees privacy and peace of mind. 314 units of The Gateway in Sewri are a perfect sea-facing residential project, where you can immerse yourself in a posh life.
