The specific and extravagant way of living at Tripura Landmark V, a unique collection of 3 BHK villas from the Tripura Constructions project, located in Bowrampet, Hyderabad, which is currently one of the rapidly emerging areas. The large project consists of 201 units. The location is an ideal residential area, with excellent connectivity to the main areas of the city. The project offers a variety of facilities that are modern and fully equipped and can be used for different activities, like relaxation, workouts, and socialising.
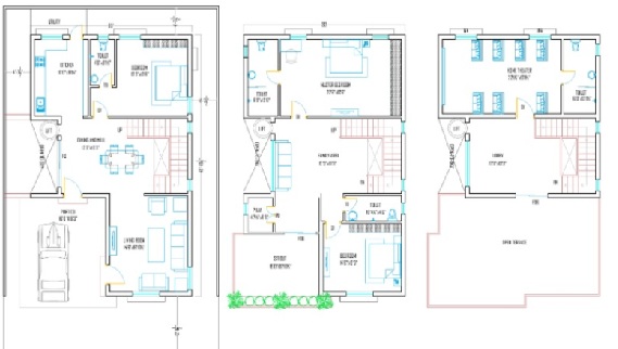
The latest facilities will be available for the owners. The community gives space for different sports and recreational activities, and has a Clubhouse meant for the community. Besides the large Green areas and the landscaped gardens, the project will enjoy peace. The villa units have a large size that ranges from 2769 sq ft to 3412 sq ft, and the unit layouts consist of 2 Floors, which are designed for family living.
