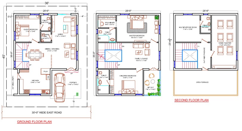
As the project is called Nature, think of this community as nature-respecting stories that will be beautifully nestled amongst the greenery. Introducing Nature Phase II from APR Group that combines chic living with comfort through nature-inspired design in Patancheru, Hyderabad. For those wanting to connect to more than just the house, these custom-built 3 and 4 BHK villas range from 1350 sq ft to 3065 sq. ft, offering ample space to live, grow, and create memories for families.
Offering 89 villas and in a tranquil setting, this G+2 community strikes the right balance between creating privacy and belonging. Nature Phase II in Patancheru provides practical amenities that enhance simple living. A well-equipped gym ensures you can stay fit and energised, a cosy library invites you to enjoy your favourite novel of the month, while the indoor games area creates options for families to share enjoyable moments. Each space, including the outdoor yoga space, encourages daily balance, well-being, relaxation, and togetherness while surrounded by a calm, natural setting, with other amenities aimed at fulfilling contentment. The peaceful natural backdrop and well-planned infrastructural design are a perfect setting for family environments!
