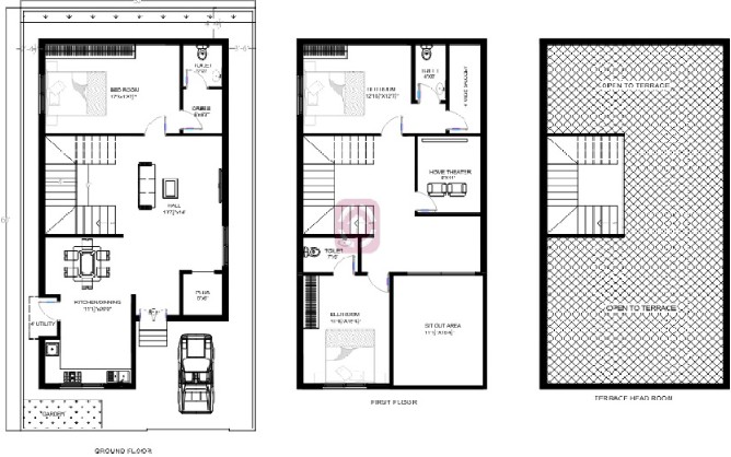
Welcome to GAK Chirayu, the much-awaited residential villa project by the reputed GAK Group, tucked away in the quiet neighborhood of Bachupally. Designed in a 4.5-acre area, the whole township will comprise of 79 independent houses, keeping its structure under Ground + 1 Floor, offering a life's experience well thought out, having modern comforts integrated with nature.
Sustainability is the main focus point in this construction and it encompasses a lot of features in that regard, such as rainwater harvesting, energy-efficient utilities, and greenery. The villas have been designed and constructed in such a way that maximum natural ventilation and light will minimize carbon footprint and create a healthier environment for the families living inside it. Basic amenities required have been included in the project in terms of landscaped gardens, wide roads, and community areas.
GAK Chirayu is well placed in Bachupally, one of the ideal localities to live in Hyderabad, because it is extremely well connected to all important points or destinations such as schools, healthcare institutions, IT hubs, and shopping centers. The location is served by the important routes with easy connectivity to travel without the chaos of city life.
GAK Chirayu, whether a family wanting a sustainable and comfortable house or an investment in a green-oriented community, it has everything needed for an ideal but responsible living in modernity. Live in a home with the values of a contemporary lifestyle today with each step and every day moving toward a possible greener future.
