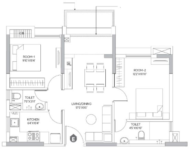
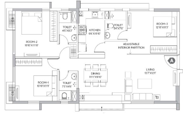
Embrace the next level of lifestyle at The Crown, launched by Sekaran Foundations, located in Perumbakkam, Chennai. The residential apartments are designed with a dual living option to choose your desired space to live in. It has 2 and 3 BHK, where the buyer can choose the residences according to their family size and requirements. With the ready-for-occupancy, the buyer can begin their lifestyle immediately after purchasing their home. The Crown in Perumbakkam is located at a prominent destination, making it more comfortable to reach by public transport from all directions. The apartments come with unit sizes ranging from 850 sq ft to 1760 sq ft, offering more space to accommodate, and the residents can spend more time with their family members in a comfortable way. Enclosed with essential amenities like a rooftop sit-out space to rest and relax with family members. The project has 30 exclusive units, which can be chosen by the buyer to select their desired space to accommodate. It also has a walking track inside the premises for regular exercise.
