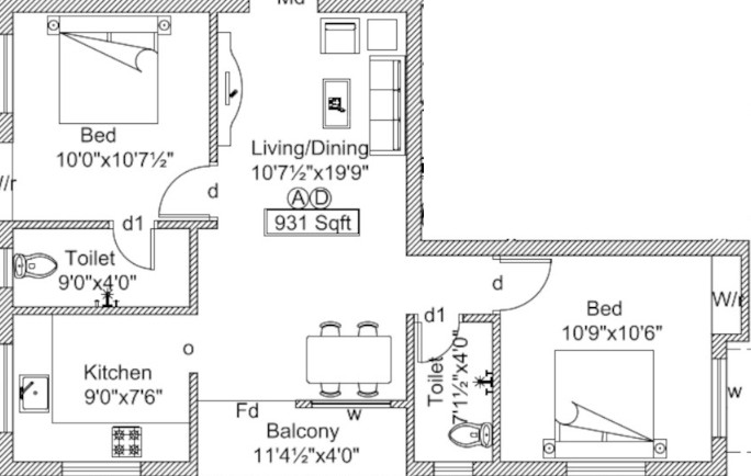
Sri Om Muruga Brindhavanam in Maraimalai Nagar by Sri Om Muruga Constructions is one of those low-key apartment projects - not trying to impress with size but rather with simplicity. Just 8 units, that’s all. You’re not gonna deal with elevator queues or packed corridors. The whole place is set on about 3124 sq.ft., so yeah, compact and straightforward. It’s a Ground plus 3-floor structure. No towering skyline, just clean-cut design. They’ve got both 2 and 3 BHK options, and the sizes run between 918 and 1220 sq.ft., so there's decent range depending on what you need,maybe a bit more space for the kids, or a snug 2 BHK if you're just starting out. The main pull? It's ready to occupy. No timelines, no phase-two drama, no ‘launch offer’ nonsense. You can move in right away. That cuts a lot of stress. And Maraimalai Nagar, in general, is one of those places that still holds that calm Chennai edge,good road links, functional lifestyle, not chaotic like the core city. This one’s for people who want a livable flat, not a hyped-up gated fortress. No frills, no inflated pricing. Just a simple apartment with the basic comforts. So, if you’re checking out flats in Maraimalai Nagar and want something clean, compact, and move-in ready? This one deserves a look.
