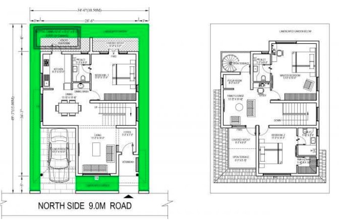
Shreyas Mini Town in Avadi is one of the beautifully crafted independent villas developed by V Square Green Homes and is a gated community that every home buyer loves. There are a total of 150 2, 3, and 4 BHK individual villas developed in the landscape of 3.1 acres covering a unit range of about 850 – 2200 sq.ft.
The gated community is designed with carefully planned layouts offering the perfect blend of efficient design and private space. Whether you are choosing a cozy 2 BHK or spacious 3 or 4 BHK villas, every individual home here reflects aesthetic appeal with practical living. These villas in Avadi are top preferred for their attention to detail, solid construction quality, peaceful setting, wide internal roads, and plenty of natural light. You are not too far from the daily city essentials.
The location is situated close to top healthcare centres, schools, shopping markets, colleges, bus access, and more – which means you can enjoy your daily life seamlessly stress-free. If you are in search of a house for sale in Avadi with a promising future, security, and freedom, Shreyas Mini Town should be your go-to destination.
