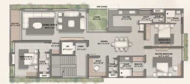
Live exceedingly well in the most exclusive setting. Sanctuary X 24, developed by Sanctuary Spaces, is an exclusive collection of 3 BHK luxury apartments situated in the pristine area of Adyar, Chennai. Each apartment is sophisticated yet practical, and generously designed at 2,830 sq ft, featuring spacious open-plan living, the essence of modern comfort and style. Just 5 boutique homes ensconced in a Stilt + 5 floors, this project is ultimately private and offers a calm residential experience, presenting an elegant modern design. It is for those who expect luxuries in every detail.
Sanctuary X 24 in Adyar is embellished with beautifully landscaped terrace gardens, and much to your benefit, offers a drumlin of green haven inside the city. In addition, offers everything for convenient daily living, and these simple amenities will always be at your service, and be an elevated experience and living. If you’re in the market for a limited-edition home that embraces comfort and contemporary architecture, it invites you to experience the privilege of living where posh feels natural.
