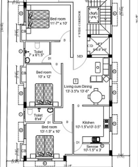
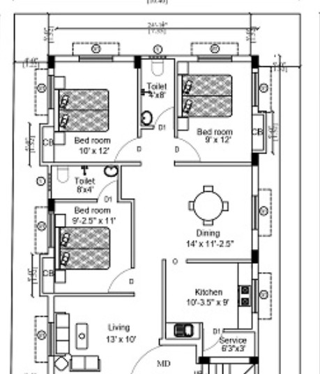
Rajnis Umanivas in T Nagar - This project comes from Rajni Foundation Private Limited, and honestly, it keeps things refreshingly simple. Just 7 units tucked inside a single block, with only 3 floors total. No tall towers. No packed corridors. Just a calm, compact setup that feels more homely than most places around. The flats? All 3 BHKs. So if you were hoping for tiny studio pads or 1 BHKs, this isn't that. These are proper homes,built for folks who need space. And as for the size, they fall between 1194 to 1201 sq.ft. Not huge mansions, but definitely comfortable enough for families looking for a solid setup in the city. This whole thing sits on 0.16 acres, which isn’t much, but with just 7 apartments in the mix, it doesn’t feel cramped. You’ve got enough room to live without constantly brushing shoulders with neighbours. Location-wise, T Nagar hardly needs an introduction. Schools, shopping, restaurants, transport,you’re literally in the middle of it all. But somehow, Rajnis Umanivas manages to tuck itself into a pocket that feels calm despite all the buzz around it. And it’s ready to occupy. That’s a big plus. No timelines, no guesswork. You like it, you move in. That simple. If you're scouting for apartments for sale in T Nagar, and you'd rather skip the noisy, crowded developments, this one's worth a serious look. Small in size, big on comfort.
