Address: 1, Ponniyamman Kovil 2nd Street, First cross Street, Sholinganallur, Chennai, Tamil Nadu 600119, India.
 
        
       47 L
23. L
Principal + Interest
Where is MS Swastika located?
MS Swastika is located in Semmencherry, Chennai
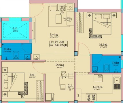
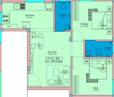
What are the unit sizes available in MS Swastika?
Unit sizes of the MS Swastika ranges from 795 - 840 Sq.Ft .
What is the price range of MS Swastika in Semmencherry, Chennai
The price of MS Swastika ranges between 47.73 L - 50.4 L *.
How many units are available in MS Swastika?
There are about 6 units in this project.
What is the total area of MS Swastika?
MS Swastika Built across 0.106 Acres of land.