Not every project needs to be big to make sense. MMA DN6 Dream Nest in Urapakkam, by MMA FOUNDATIONS, sitting in the growing locality, kind of proves that. It's set across just 0.078 acres. That’s right,just 10 flats in total. So you don’t have to share your walls with too many neighbors. Peaceful setup. It’s got just one block, going up to Ground plus 3 floors. Not high-rise. Not packed. Just a small footprint, easy to manage, easy to settle into. And the best part,it’s ready to occupy. No waiting around or second-guessing.
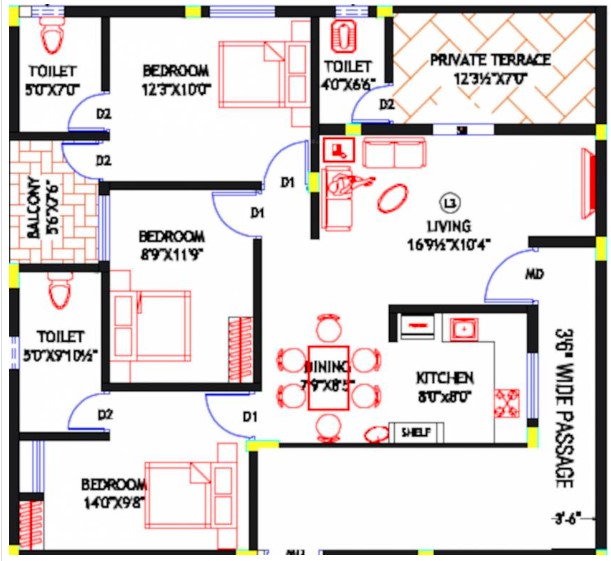
You’ve got 2 BHK and 3 BHK flats here. The kind of configuration that suits both young families and folks looking to upgrade from a starter home. Sizes go from 746 sq. ft. to 987 sq. ft., so there’s breathing space without stretching things too far. It doesn’t come with massive clubhouses or unnecessary add-ons. But it gives you the essentials,a proper space to call your own, with a decent layout, in a calm area that’s steadily picking up value. Urapakkam’s been seeing better roads, more schools, shops, and easier commutes into the city core. You won’t be too far from the action, but you won’t be caught in the noise either. So yeah, if you're looking for flats in Urapakkam, and you’d rather skip the chaos of crowded towers,DN6 Dream Nest offers a neat, grounded option.
