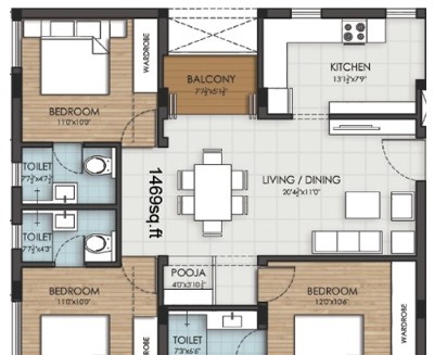
Indus Vakshastalam in T Nagar - This project by Indus Alliance Foundations is sitting right inside T Nagar, but not in your face. It’s in that sweet spot,central, but not suffocating. Only 8 units here. One block. Stilt + 4 floors. So you're not walking into a colony of 100 flats or waiting 10 minutes for an elevator. Just a quiet, compact setup that makes life simpler. Every apartment is a 3 BHK, which is nice. No mix of studio units or tiny boxes. You get space that actually fits a family, or even a couple wanting that extra room. And as for the size? The homes range between 1192 and 1469 sq.ft, so they’re decently roomy without being oversized. There’s no sprawling clubhouse or anything fancy. But that’s the point,it’s not trying to be flashy. It’s trying to be livable. Functional. Real. Built in a way that doesn’t scream for attention but still feels well done. Since it’s ready to occupy, there’s no “possession in 6 months” drama. You like it, you move in. Done. In a place like T Nagar, finding apartments that aren’t jammed up or overpriced for their size is rare. But Indus Vakshastalam brings that balance,location, space, simplicity,all wrapped into just 8 homes.
