Hiranandani The Highlands in Oragadam brings together intelligent layout and everyday comfort, wrapped in a setting similar to a bundle of joy that stays surprisingly peaceful.
The project comes from Hiranandani Communities, a name that consistently delivers smartly built, long-term spaces that hold value—not just in square feet, but in how it feels to live there.
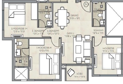
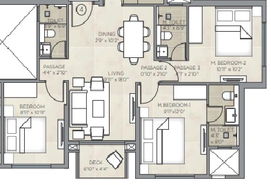
Curated across 1 acre, the community is home to 660 flats, offered in 2.5 and 3 BHK configurations. The planning doesn’t only give you rooms—it gives you a flow. Sizes range from 1706 to 1927 sq. ft, giving each home enough room for practical use while still holding onto a sense of elegance.
Inside the units, there's a balance of light and structure. Kitchens connect with dining, living opens into balconies, and the overall space feels uninterrupted. These homes aren’t oversized, but they’re certainly not short on thought.
The location in Oragadam offers a rare mix of industrial access, developing infrastructure, and moments of stillness. Key routes, educational zones, and day-to-day services are reachable within 20–30 minutes—keeping you close to what matters, without being right in the middle of everything.
This isn’t a sprawling township. It’s something more compact, more composed.
At Hiranandani The Highlands, it’s less about standing out—and more about standing strong.
