Elements Kamalam in Kandigai isn’t trying to impress you with scale or shine. And maybe that’s why it lingers. It’s a small place, yes—just half an acre—but it’s been built for something bigger: comfort that lasts.
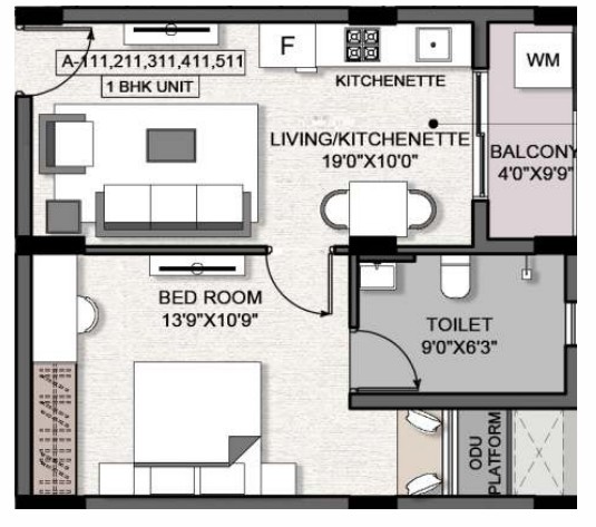
There’s one block, G+5 floors, and just 110 homes inside. All of them either 1 or 1.5 BHK, compact but usable, with layouts that don’t waste a step. It’s meant for folks in a slower season of life—where peace matters more than pace.
The team behind this—Elements Active Senior Living—has done this before. You can tell. The decisions here feel… quiet. Practical. The kind of thoughtfulness that shows up in the little things, like wider hallways or calmer shared spaces.
It’s not a retirement “facility,” and it doesn’t feel like one. It feels like home—just a gentler kind.
You’re near Kelambakkam, Vandalur, GST Road, but tucked far enough to breathe. Not isolated. Just... enough removed.
If you're looking for a place that understands you don't want fuss—but you still want company, comfort, and clarity—Kamalam might just sit well with you.
No big promises. Just space that lets you be.
