Double T Mango Farm in Madhavaram, developed by Double T Construction and Promoters LLP, one of those projects with no flashy towers or no massive crowds. Just a clean, thoughtfully laid-out space in Madhavaram that delivers what matters.
Spread across 20 small blocks, each with 3 floors, the layout’s low-rise and relaxed. That’s a rare thing in the city now. With just 72 residential apartments in total, the scale is manageable. You don’t get that packed-in feeling. There’s room to breathe, walk, and live without bumping into someone every five minutes.
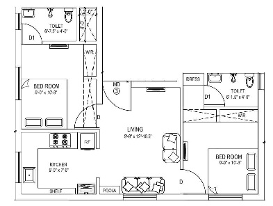
The homes are all 2 BHK, ranging in size from 712 to 1208 sq.ft, which works well whether you're starting out or settling in. The spaces are designed for easy movement, not cluttered layouts. You can actually picture furniture fitting in without needing a tape measure every five minutes.
One of the biggest pluses? It’s ready to occupy. No future promises, no vague delivery dates—just walk in and start life. Whether you’re an end-user or looking for a safe investment with steady demand in this part of Chennai, this project lines up just right.
Madhavaram’s a fast-growing pocket, and Double T Mango Farm blends into that local rhythm nicely. It’s not trying to be the next big thing—it’s just a solid, livable setup that understands space, pace, and people.
