Essential Information of DAC Marshal

Property Type Flats
Project Location Tambaram East, Chennai
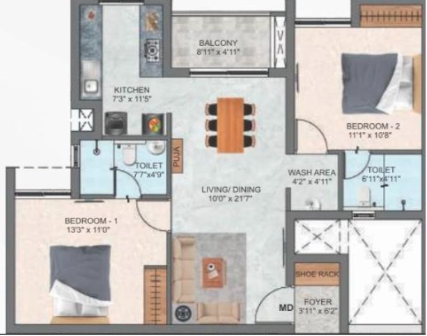
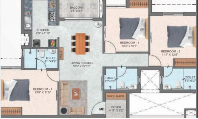
Bedroom(s) 2 & 3 BHK
Unit Sizes 1164 - 1490 Sq.Ft
Price Range 98 L - 1.25 Cr (Base Price) *
Rate per Sqft 8,420
Total Land Area 1.35 Acres
No. of Units 114
Total Blocks 3
Total Floors Stilt + 5 Floor
Possession Under Construction (Mar 2026)
Rera Id TN/35/BUILDING/0386/2024

Price of DAC Marshal

Config
Size (Sq.ft)
Price
2 BHK Flats
1164
98 L *
3 BHK Flats
1490
1.25 Cr *

About DAC Marshal

Some places settle you the moment you arrive. That’s what DAC Marshal in Tambaram East does. Set across 1.35 acres, this under-construction community by DAC Developers brings 114 homes designed around quiet functionality. You get a choice—2 or 3 BHKs, ranging from 1164 to 1490 sq. ft.—each one built with space to stretch, breathe, and just be.

The structure rises up to five floors, resting atop a stilt level. And every detail has been tuned to daily life—right-sized rooms, flow that feels natural, and thoughtful touches like rooftop BBQ areas, a reading lounge, senior zones, and a gym that’s not just a checkbox.

Location-wise, you’re in a sweet spot. Tambaram East doesn’t try to impress—it just works. From schools like Alpha International to colleges like Madras Christian and Bharath University, education is all around. Hospitals are close too—Bethesda, Christudas, and Rela within reach. And yes, MEPZ, Shriram Gateway, and quick transit options mean you’re never far from where you need to be.

There’s a rhythm here. It’s not rushed. It’s rooted. Built for families, for balance, for staying in or stepping out. Because this isn’t just square footage. You’re buying time, space, and peace.

DAC Marshal Address

Address: Ricky Garden, Tambaram - IAF Main Road, Selaiyur, Tambaram East, Chennai, Tamil Nadu 600073, India

Amenities of DAC Marshal

  • Unisex Gym
  • Billiard
  • Outdoor Play Area
  • Indoor Game
  • Multipurpose Hall
  • Rooftop Barbeque Center
  • Reading Lounge
  • Carrom Board
  • Senior Citizen Area

Specifications of DAC Marshal

STRUCTURE

RCC Framed Structure and Red Brick blocks used for External/ Internal walls.

EarthQuake Resistant Structure to adhere to Seismic Zone III.

Anti- Termite Treatments wherever applicable during the Construction Stage.

TILING

Stilt floor lobby with Granite flooring and Corridors & typical floor lobby – vitrified tiles.

Car Parking – Grano flooring and Driveway ( External) – first quality interlocking paver.

Dado

All tiles will be from KAJARIA/ SOMANY or equivalent make.

Kitchen – 2' x 1' ceramic wall tiles up to 2 feet above the platform will be provided.

Toilet – 2' x 1' ceramic wall tiles up to 8 feet height from the floor level.

Utility areas – 2' x 1' ceramic tiles, height to match the kitchen wall tile level.

KITCHEN

18 mm thick Black granite of size as per drawing for kitchen platform will be provided.

Stainless steel sink with drainboard ( 36'' X 18'' X 8'' ) NIRALI/ FRANKE/ DIAMOND or equivalent make will be provided.

Vitrified tile flooring from KAJARIA/ SOMANY or equivalent make.

Sink water point - CP fittings will be provided.

DOORS, WINDOWS, VENTILATORS

MAIN DOOR (3'6" x 8'0") 8 FEET HEIGHT, frame is made of good quality Engineered wood. Shutter of 40 mm thick both Sides finished with engineered Veneer with grooves and designer hardware's of YALE / GODREJ or equivalent make.

BEDROOM DOOR (3'0" x 7'0") 7 FEET HEIGHT, frame is made of good quality Engineered wood. Shutters of 35 mm thick both Sides finished with laminate and designer hardware's of YALE / GODREJ or equivalent make.

TOILET DOOR (2'6" x 7'0") 7 FEET HEIGHT, frame is made of good quality Engineered wood. Shutters of 30 mm thick both Sides finished with laminate and designer hardware's of YALE / GODREJ or equivalent make.

UPVC French doors with Sliding shutter will be from SAINT- GOBAIN/ FENESTA or Equivalent make.

UPVC Windows with sliding shutters for all windows will be from SAINT- GOBAIN/ FENESTA or Equivalent make. Grills will be provided.

UPVC Ventilators with pin headed glass along with Exhaust fan provision will be from SAINT- GOBAIN/ FENESTA or Equivalent make.

PAINTING FINISHES

All internal walls will be finished with 2 coats of smooth putty, 1 coat of primer and 2 coats of Premium emulsion paint of ASIAN/ NIPPON/ DULUX/ or Equivalent make.

All external walls will be finished with Texture, 1 coat of primer and 2 coats of weather proof emulsion paint of ASIAN/ NIPPON/ DULUX/ or Equivalent make.

Ceilings will be finished with 2 coats of smooth putty; 1 coat of primer and 2 coats of Tractor Emulsion ASIAN/ NIPPON/ DULUX/ or Equivalent make.

MS Railing with enamel Paint finish for Balcony aesthetically designed & fixed to wall as per Elevation and SS Railing for Staircase.

ELECTRICAL FIXTURES / FITTINGS

Three- phase power supply with concealed wiring will be provided.

All switches will be of SCHNEIDER / HAVELLS / LEGRAND or equivalent make.

Cables & wiring will be of HAVELLS / ANCHOR/ POLY CAB or equivalent make.

SPLIT A/ C provision with electrification will be provided in the Living room, dining and in all bedrooms. 15 A plug point will be provided for the Refrigerator, Washing machine and Micro- oven.

Geyser provision with electrification will be provided in all toilets.

5A socket for the chimney will be provided in the kitchen and Exhaust fan point in all toilets.

Power back up of 600 W FOR 2 BHK, 800W FOR 3 BHK apartments & the essential points in common areas.

Solar power for the essential points in common areas.

TV points will be provided in Living and in all bedrooms and Telephone/Internet points in Living & Master bedrooms.

USB charging ports in switch boards will be provided in Living and in all bedrooms.

PLUMBING & SANITARY

All sanitary ware in ceramic of superior brands like GROHE/ KOHLER or equivalent will be provided.

EWC with health faucets of superior brands like GROHE/ KOHLER or equivalent will be provided.

Washbasins of superior brands like GROHE/ KOHLER or equivalent will be provided in toilets.

CP fittings of superior brands like GROHE/ KOHLER or equivalent will be provided.

Single lever HI – FLOW concealed diverter of GROHE/ KOHLER or equivalent hot & cold mixer with overhead shower will be provided in the toilets.

CPVC/ UPVC pipelines/ PVC Soil waste lines/ sewage pipelines and Rainwater lines of quality ISI brands like ASTRAL/ SUPREME/ PRINCE or Equivalent Will be provided.

DAC Marshal Floor plans

Explore DAC Marshal in Map

Error icon
Oops! Something went wrong.
This page didn't load Google Maps correctly. See the JavaScript console for technical details.
EMI Calculator
Lakhs
0 25 50 75 100 125 150 175 200
%
5 7.5 10 12.5 15 17.5 20 22.5
Years
0 5 10 15 20 25 30 35
  • Cost of Home

    98 L

  • Loan Amount

    49 L

  • Monthly EMI

  • Total Interest Payable

  • Total Amount Payable

    Principal + Interest

FAQs About DAC Marshal Tambaram East

Where is DAC Marshal located?

DAC Marshal is located in Tambaram East, Chennai

What are the unit sizes available in DAC Marshal?

Unit sizes of the DAC Marshal ranges from 1164 - 1490 Sq.Ft .

Is the DAC Marshal RERA registered?

Yes, DAC Marshal is registered under TNRERA and the registration number is TN/35/BUILDING/0386/2024.

What is the price range of DAC Marshal in Tambaram East, Chennai

The price of DAC Marshal ranges between 98 L - 1.25 Cr *.

How many units are available in DAC Marshal?

There are about 114 units in this project.

What is the total area of DAC Marshal?

DAC Marshal Built across 1.35 Acres of land.

Ongoing Projects Near DAC Marshal
Other Projects by DAC Developers in Chennai