Here’s what you need to know about Budget Sai Jailakshmi Gardens in Thiruvallur—it’s a laid-back residential villa community built across 5 acres, with just 71 individual houses, giving you space to breathe and live without the usual apartment chaos. Developed by Budget Housing and Properties, this place is all about functional, comfortable living without the unnecessary frills.
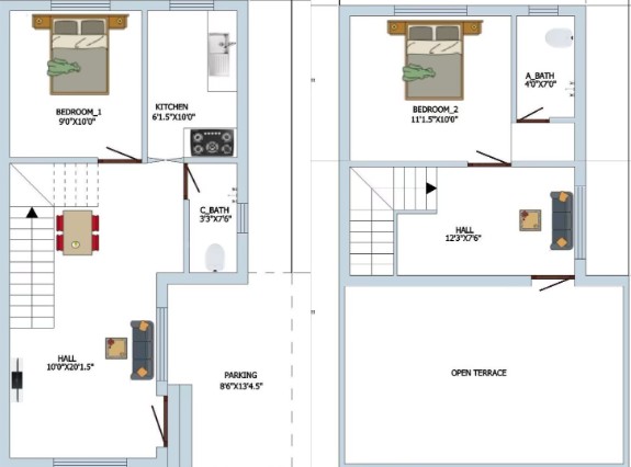
The houses here come in 2 and 3 BHK options, laid out over Ground + 1 floor structures. Nothing too tall, nothing too clustered. Perfect for folks who prefer their own little independent space without having someone stomping above. The size range stretches from 699 sq.ft. to 1283 sq.ft., which works well whether you’re a small family or just want that extra room to stretch out a bit.
Thiruvallur, honestly, is one of those growing locations that still keeps things peaceful. You’re not far from essentials—schools, shops, bus access—but you're also not in the middle of city noise. And here's the good part—these homes are ready to occupy. No construction delays. No waiting game. You can see exactly what you’re getting.
So yeah, whether you’re looking to settle down or buy your first home without blowing your budget, Budget Sai Jailakshmi Gardens gives you that straightforward, no-nonsense kind of home. No high-rise fuss, just clean, honest living in a growing neighborhood.
