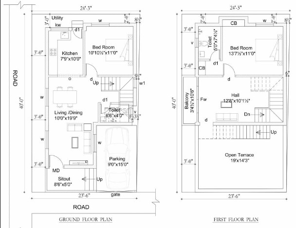
Brindhavanam in Maraimalai Nagar,this isn’t one of those big flashy gated townships packed with rows and rows of houses. It’s just three villas. That’s it. Built by Sri Om Muruga Constructions, and yeah, they’ve kept it simple. Straight to the point. Just 3 ready-to-occupy 2 BHK independent houses. Nothing overcrowded. Nothing overdone. Each villa is ground plus one. Not too tall, not too cramped. You get that extra space upstairs, but it still feels homely. The build? 1282 Sq.Ft per unit. Not too small, not massive either,but just enough if you’ve been wanting your own private space without walking into a jungle of flats.
The plot itself? 100 acres. Big. But don’t expect dozens of houses squeezed in here. Only three units got built. So, if you're after peace and space, not chaos and crowds, this one hits different. No elevator issues, no neighbors stacked over your head. It’s in Maraimalai Nagar, good location, growing fast,but still got that quieter edge. You won’t find too many houses for sale in Maraimalai Nagar that are ready-to-move and this low in number. Most places just keep adding more blocks. Look, if you're searching for 2 BHK villas in Maraimalai Nagar, something private, ready, and not stuck in a construction mess,Brindhavanam is worth checking out. No waiting. What you see is what you get. Sometimes fewer homes make for a better lifestyle. This one's one of those rare finds.
