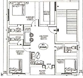
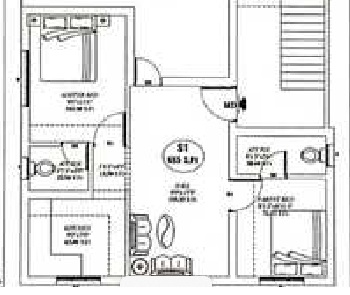
Ananditha Enclave in Iyyappanthangal by Happy Homes is not your usual mega project. It’s small, and quiet. Only 5 units in total. That’s all. Just one block, built up to two floors , so yeah, no towers, no buzzing lobbies, none of that.
It’s perfect for folks who just want a peaceful setup, somewhere that doesn’t feel like living in a mall. You’ve got 2 and 3 BHK options, and the sizes range between 621 to 910 sq.ft. Not too big, not too cramped. Just enough for a small family or even someone starting out. The builder, Happy Homes, kept it simple , no fluff, just functional spaces. And best part? It’s ready to occupy. No waiting, no construction noise, no fake promises. You find a flat, do the papers, and you’re good to move in. Now, being in Iyyappanthangal puts you in a pretty decent location. You’re close to basic needs , schools, clinics, local markets , all in the area. No crazy detours just to get groceries.
In short, if you’re on the lookout for apartments in Iyyappanthangal that are more personal, low-key, and don’t come with a giant crowd, Ananditha Enclave ticks that box. Only 5 homes here, so yeah, probably not gonna stay on the market too long. Worth checking out before it's gone.
