Launching the wide, spacious residential unit at Aanirudh Shree Palace, developed by Aanirudh Flat Promoter Pvt Ltd, located in Nanganallur, Chennai. The project is ready for occupancy in conditions that have limited units in this community.
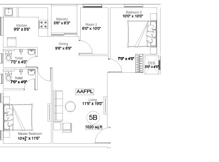
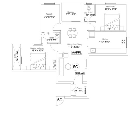
They are properly maintained and managed in perfect condition with 2.5 BHK as comfortable living space for every family member. Each unit is well developed for families who seek privacy as their main choice. The family member gets their individual space with an independent stay.
Aanirudh Shree Palace in Nanganallur is designed with unit sizes ranging from 1020 sq ft to 1090 sq ft, which is more efficient than having a wide space to live in. Enclosed with essential amenities, the park is where you can spend time with family and friends in a relaxing way.
This project offers 2 units, which is limited, with the advantage of low population with less noise. It also allows the residents to use all the amenities to their fullest potential. It connects all the nearby locations, which can be reached with a short distance walk.
