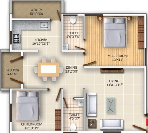
Sanathana Properties India Pvt Ltd presents the commercial and the residential properties and has been said as the top most real estate developer. For 24 years, they have shaped the best quality of constructions to make the home seekers happy. From such an admired builder, we have got the property named Vrushabadri Mountain. This is developed as the flat type of property which is situated in the main spot of the Bengaluru city. The builder had chosen the place of Whitefield. There are double bedrooms made with the units of 72.
