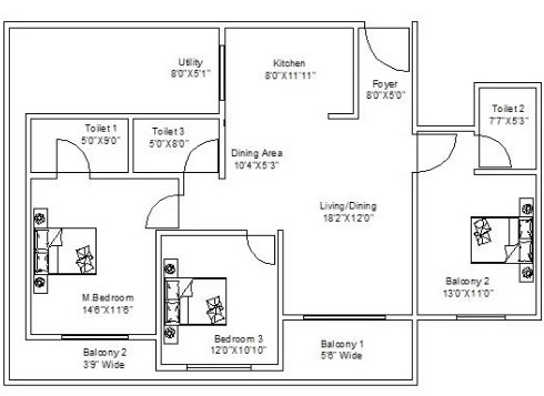
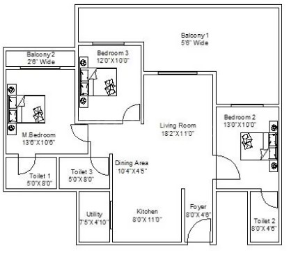
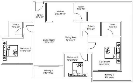
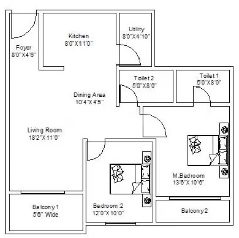
Spanning over 1.55 acres, Sipani Pennantia is a majestic elevation which is designed to make life more comfortable and suitable. Sipani Properties Pvt Ltd has given the 108 apartments which are having the best ever spatial planning. The flat is available with double and triple bedrooms with floor space of 1190 sq. ft. to 1795 sq. ft. Experience the excellent city view from the balcony. The builder has vast experience constructing homes with 100+ luxury amenities to make the residents' life easier. Get ready to be a member of the gated community.
