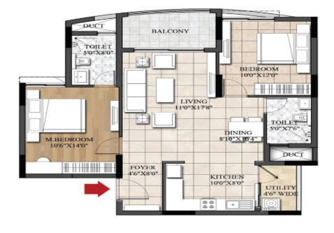
Experience an elevated lifestyle that fits your style at Signature Heights. This well-thought-out residential complex in the tranquil growth hub of Neralur, Bengaluru, has been developed by Signature Dwellings Private Limited. This alluring association offers expansive 2, 2.5, and 3 BHK flats that have layouts size between 1204 sq ft and 1802 sq ft. Each apartment is made with a modern and smart design, outstanding layouts, and a quality finish, so you can enjoy calm and stylish living. Signature Heights in Neralur has the perfect trifecta of space, style, and serenity.
This project is a breathtaking above-grade tower, spread over 14 floors, and featuring 346 units, community residents. Every inch is designed to enhance your everyday lifestyle. Not only do these flats boast a 4,000 sq ft clubhouse for recreation, festivities, and socialising, but the community is uniquely situated among open-air green spaces and provides a surrounding fresh, calming refuge that feels connected to the neighbouring metros of the region. Note the location, refined elegance, and sophistication provide a highly desirable ambience that puts forth feelings of comfortable belonging and warm-fuzzies is a way of modern livings that make for memorable lifestyles, not just a location.
