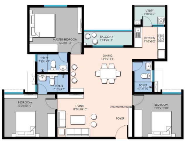
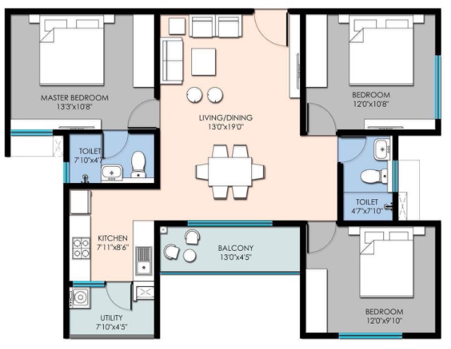
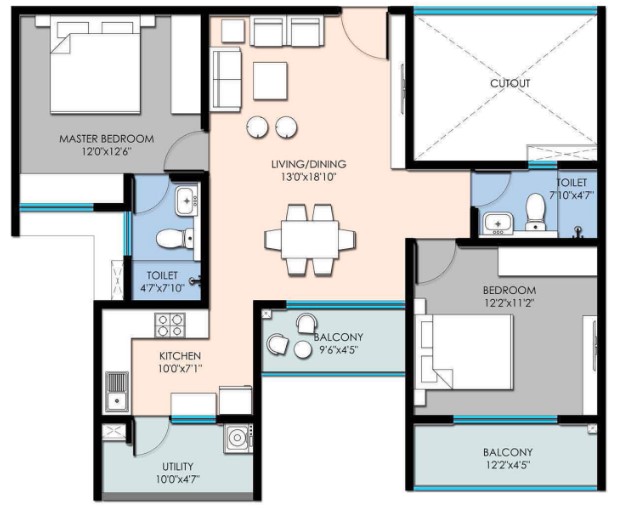
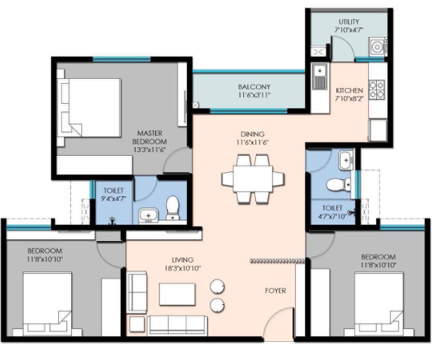
Visit the property named SBR Pravanika which is one of the best buildings suitable for residents. This is constructed as an apartment of 2 BHK, 2.5 BHK and 3 BHK bedroom units each. The unit sizes are of the range of 1102 sq.ft. to 1601 sq.ft. Since the rooms are of different sizes with different prices, you can utilize it as you wish. 220 are the available units which comprises the total land area of 1.90 acres. This is presented to you by the constructor of SBR Group. So get a chance to move to a new home.
