Essential Information of Hara Vijaya Heights

Property Type Flats
Project Location Kanakapura, Bengaluru
Bedroom(s) 2,3 & 4 BHK
Unit Sizes 1100 - 3240 Sq.Ft
Price Range 53 L - 1.74 Cr (Base Price) *
Rate per Sqft 4,819
Total Land Area 3 Acres
No. of Units 244
Total Blocks Not Mentioned
Total Floors -
Possession Ready to Occupy
Rera Id PRM/KA/RERA/1251/310/PR/171014/000372

Price of Hara Vijaya Heights

Config
Size (Sq.ft)
Price
2 BHK Flats
1100 - 1450
53 L - 84 L *
3 BHK Flats
1420 - 2015
68 L - 1.17 Cr *
4 BHK Flats
3200 - 3240
1.72 Cr - 1.74 Cr *

More About Hara Vijaya Heights

You can select the units from 2 bhk, 3 bhk and 4 bhk bedroom flats in the Hara Vijaya Heights apartment building. Every area of the house that Vijaya Enterprises has created is completely gorgeous. Every wonderful memory you have, can be turned into a lifetime moment which is possible by the magical living here. Find out the units as the entire land area has 244 units with three acres. Under this space, you can enjoy independence and a lively social life. Experience the top-of-the-line flat with contemporary amenities.

Hara Vijaya Heights Address

Address: 84/7/14, VISL Layout, Talaghattapura, Pipeline Road P.O, Off, Kanakapura Main Road, Bengaluru, Karnataka 560062, India

Amenities of Hara Vijaya Heights

  • 24 Hrs Security
  • CCTV cameras in common area
  • Convenience Store
  • Intercom facility
  • Swimming pool
  • Well equipped Gymnasium
  • Billiards & T T tables
  • Children’s play area
  • DG Power Back-up
  • Landscaping
  • Temple
  • Cafeteria
  • Clubhouse
  • Multi Purpose hall
  • Senior Citizen Gazebo
  • Visitor Parking

Specifications of Hara Vijaya Heights

STRUCTURE

• RCC frame structure with solid concrete block masonry walls

• Building 1: Ground + 11 floors

• Building 2: Ground + 5 floors

• Covered car parking in ground floor & open parking on surface

LIVING/DINING

• Vitrified tile flooring and skirting

BEDROOMS

• Master bedroom with laminated wooden flooring

• Vitrified tile flooring & skirting for other bedrooms

KITCHEN

• Vitrified tile flooring & skirting

• 18-mm thick black polished granite platform with stainless steel sink

• 2-feet tile dadoo above granite

platform

• Provision for water purifier

UTILITY

• Ceramic tiles flooring & skirting

• Covered utility with window

• Provision for washing machine & vessel washing

• Walls: tile dadoo/paint as per architect design

BALCONIES

• Vitrified tiles flooring & skirting

• Parapet wall/MS railings as per architect design

TOILETS

• Ceramic tiles flooring & glazed tile dadoo upto 7 feet for walls

• False ceiling with grid panels

• Jaquar or equivalent chromium plated fittings

• Hindware/Cera or equivalent sanitary fixtures

• Single lever diverter in master bedroom toilet

DOORS & WINDOWS

• Main door: Teak wood frame with factory molded shutter

• Sal wood frame with OST flush shutters for other doors

• Three-track power coated aluminium sliding windows with provision for mosquito mesh

• Brushed steel hardware for doors

PAINTING

• Acrylic emulsion paint for internal walls

• All balcony walls painted as per architect design

WATER SUPPLY

• 24-hours bore-well water supply through UG sump & OH tanks

• Treated water for flushing & gardening

ELECTRICAL

• Sufficient BESCOM power supply with individual meters

• Concealed copper wiring with circuit breakers for safety

• Modular switches with 5 & 15 amp points as per drawing

• Provision for air conditioner in master bedroom

• Provision for geyser, exhaust fan, television & telephone points

• Power back-up upto 1 KV for each flat

COMMON AREA/LOBBY

• Ceramic tile flooring & skirting as per architect drawing

• 24-hours generator power back-up for lift, pump, lobbies & all common areas

LIFTS

• Johnson or equivalent make as per architect drawing

LANDSCAPE

• Designer landscaping

SERVICES

• Rainwater harvesting system

• Sewage treatment plant

• Organic waste converter

• Goods/stretcher lift

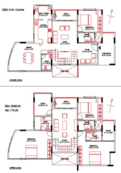
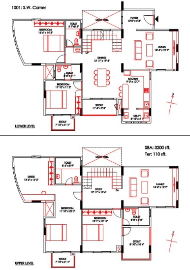
Floor Plans & Pricing

2 BHK Flats
3 BHK Flats
4 BHK Flats
1100 Sq.ft
1180 Sq.ft
1188 Sq.ft
1190 Sq.ft
1220 Sq.ft
1450 Sq.ft
2 BHK Price at 53 L* (Base Price)
2 BHK Price at 62.7 L* (Base Price)
2 BHK Price at 58.5 L* (Base Price)
2 BHK Price at 62.5 L* (Base Price)
2 BHK Price at 64.8 L* (Base Price)
2 BHK Price at 84 L* (Base Price)
1420 Sq.ft
1610 Sq.ft
1625 Sq.ft
1630 Sq.ft
1885 Sq.ft
2015 Sq.ft
3 BHK Price at 68 L* (Base Price)
3 BHK Price at 78.5 L* (Base Price)
3 BHK Price at 79 L* (Base Price)
3 BHK Price at 79.5 L* (Base Price)
3 BHK Price at 1.1 Cr* (Base Price)
3 BHK Price at 1.17 Cr* (Base Price)
3200 Sq.ft
3240 Sq.ft
4 BHK Price at 1.72 Cr* (Base Price)
4 BHK Price at 1.74 Cr* (Base Price)
EMI Calculator
Lakhs
0 25 50 75 100 125 150 175 200
%
5 7.5 10 12.5 15 17.5 20 22.5
Years
0 5 10 15 20 25 30 35
  • Cost of Home

    53 L

  • Loan Amount

    L

  • Monthly EMI

  • Total Interest Payable

  • Total Amount Payable

    Principal + Interest

FAQs About Hara Vijaya Heights Kanakapura

Where is Hara Vijaya Heights located?

Hara Vijaya Heights is located in Kanakapura, Bengaluru

What are the unit sizes available in Hara Vijaya Heights?

Unit sizes of the Hara Vijaya Heights ranges from 1100 - 3240 Sq.Ft .

Is the Hara Vijaya Heights RERA registered?

Yes, Hara Vijaya Heights is registered under TNRERA and the registration number is PRM/KA/RERA/1251/310/PR/171014/000372.

What is the price range of Hara Vijaya Heights in Kanakapura, Bengaluru

The price of Hara Vijaya Heights ranges between 53 L - 1.74 Cr *.

How many units are available in Hara Vijaya Heights?

There are about 244 units in this project.

What is the total area of Hara Vijaya Heights?

Hara Vijaya Heights Built across 3 Acres of land.

Projects Near Hara Vijaya Heights
Other Projects by Vijaya Enterprises