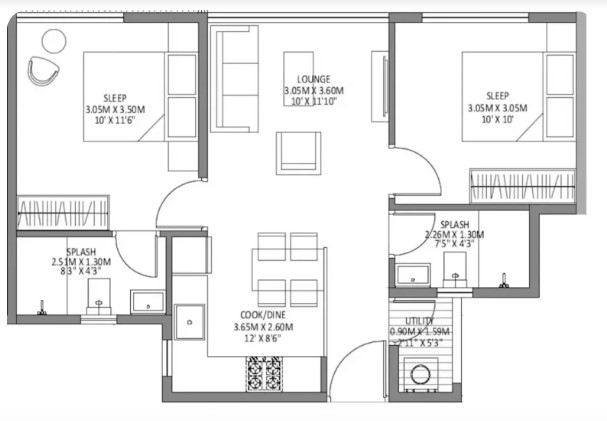
Godrej Royale Woods is an flat sort property arranged in Devanahalli. This modern extend by Godrej Properties envelops flawlessly planned 2 BHK and 3 BHK properties. This extend is spread over a gigantic region of 13 sections of land that's assist isolated into 1678 units. The measure of each of these units begins from 950 sq. ft. and goes up to 1256 Sq. ft. The apartment offers all the world-class courtesies which offers great transportation and environment. We develop the essential projects with essential utilities and amenities for a relaxed resident living. These newly made homes by our builder are a dream place for any family to live in. So, it could be a solid ‘yes’ for this flat to live in.
