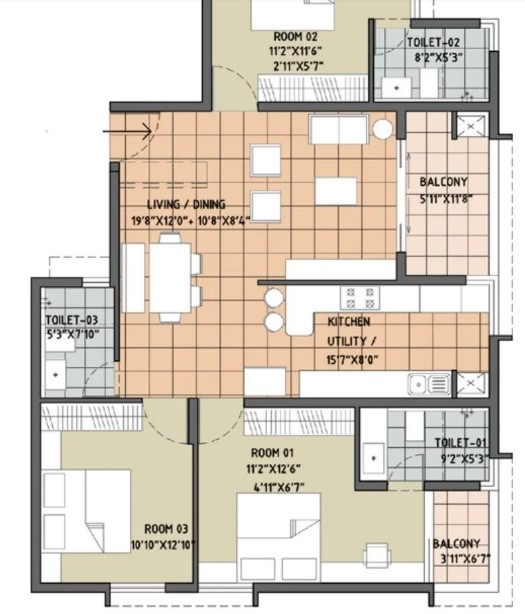
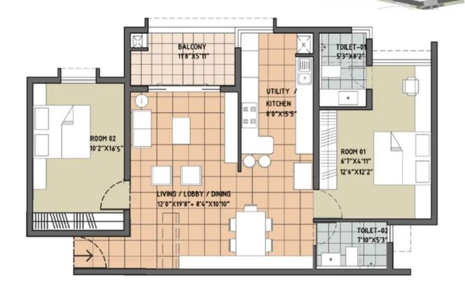
Devanahalli is famous for the cool climate and less populated locality which is best for the residential properties. There is a property named Brigade Orchards in Devanahalli, Bengaluru developed by the Brigade Group. It’s the flat type of property which stands tall as the multi-storey homes. It consists of a double and triple bedroom which has units of 1000. The square feet stretch from 1080 to 1760. If you're planning to buy a home anywhere, you would definitely want to know its neighboring places. Yes, your thought is right. All the shops, markets, schools and colleges are just a mile away which brings comfort to you.
